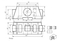
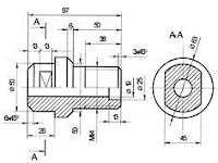
ПР № 16: "Построение третьего вида модели по двум заданным, построение аксонометрической проекции"
- Выполнить построение третьего вида модели по двум заданным, а также построить аксонометрическую проекцию.
- Методические рекомендации по выполнению заданий на практической работе № 16
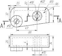
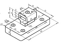
ПР № 17: "Построение третьего вида модели по двум заданным, выполнение необходимых разрезов, а также аксонометрической проекции с вырезом четверти. Нанесение размеров"
- Выполнить построение третьего вида модели по двум заданным, необходимых разрезов, аксонометрический проекции с вырезом четверти. Нанести размеры.
- Методические рекомендации по выполнению заданий на практической работе № 17
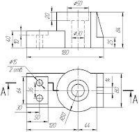
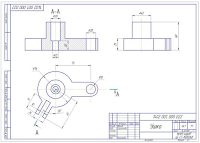
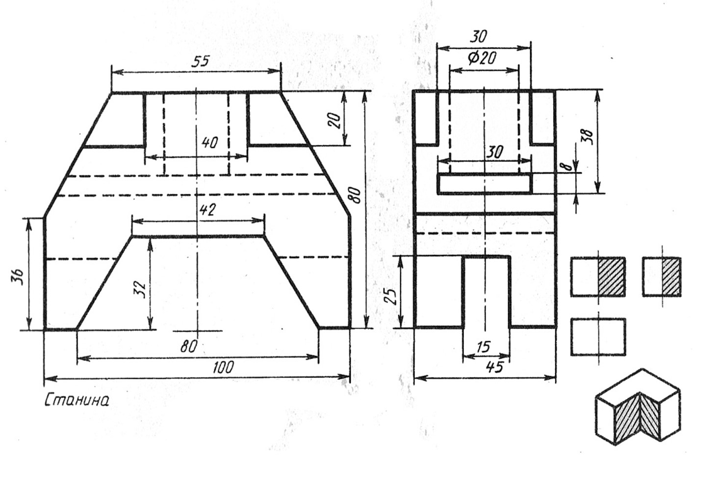
ПР № 18: "Построение третьего вида модели по двум заданным, выполнение сложного ступенчатого разреза. Нанесение размеров"
- Выполнить построение третьего вида модели по двум заданным, сложного ступенчатого разреза. Нанести размеры.
- Методические рекомендации по выполнению заданий на практической работе № 18
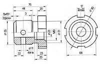
ПР № 19: "Построение третьего вида модели по двум заданным, выполнение сложного ломаного разреза. Нанесение размеров"
- Выполнить построение третьего вида модели по двум заданным, сложного ломанного разреза. Нанести размеры.
- Методические рекомендации по выполнению заданий на практической работе № 19
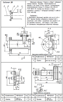
ПР № 20: "Выполнение чертежа резьбового соединения болтом, шпилькой и винтом"
- Выполнить чертёж резьбового соединения болтом, шпилькой и винтом.
- Методические рекомендации по выполнению заданий на практической работе № 20
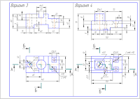
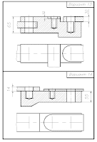
Вариант 11-15
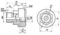
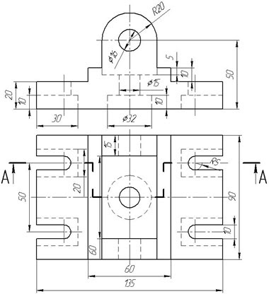
ПР № 21: "Выполнение эскиза детали с применением простого разреза"
- Выполнить эскиз детали с применением простого разреза.
- Методические рекомендации по выполнению заданий на практической работе № 21
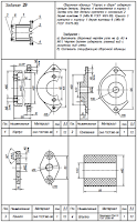
ПР № 22: "Выполнение эскиза детали с применением с применением сложного ступенчатого или ломаного разреза"
- Выполнить эскиз детали с применением сложного ступенчатого или ломаного разреза.
- Методические рекомендации по выполнению заданий на практической работе № 22
ПР № 23: "Выполнение чертежей двух-трёх деталей по сборочному чертежу"





















































































































































































































































































































































































































































Комментариев нет:
Отправить комментарий